現有皮帶輸送機設備中的傳動滾筒常安裝于下料端的機架上,輸送皮帶的寬度小于2.5米,因此無法來搬運過寬的物料,當用戶需要搬運過寬物料時,則需將兩臺或多臺膠帶機合并進行使用,不僅浪費了能源,而且占地多、投入成本較高,再者帶式輸送機械多為平板式的結構,非常容易導致工業運輸帶的跑偏;

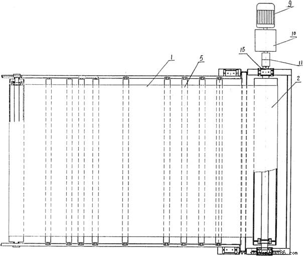
針對行業中現存技術的不足,河北輸送帶生產廠家坤碩公司通過提供一種不僅可方便的搬運過寬物料,節約能源、成本低,而且可以有效的防止傳送膠帶跑偏、密封性強,同時結構緊湊,維修十分方便的寬幅皮帶輸送機設備來實現,其結構主要包括傳動裝置、驅動裝置、拉緊裝置以及主機架,傳動裝置由輸送皮帶、傳動滾筒、改向滾筒、卸載滾筒、托輥組成,傳動滾筒安裝于進料端機架的頭架上,改向滾筒安裝于機架的前端上,卸載滾筒則安裝于下料端的機架末端上,皮帶機托輥則安裝于由支柱支撐的中間架上,驅動裝置則是由電動機、減速機和聯軸器構成,電動機的輸出主軸與減速機的輸入軸連成一體,減速機的輸出軸由聯軸器與傳動滾筒的傳動軸進行連接,另外托輥組是由上、下托輥組成,呈凹槽狀的上輥排布于中間架的上部,下輥排布于中間架的下部,上、下托輥的兩端分別裝有密封圈,此種機構的布置可使得所鋪設的橡膠運輸帶寬度拓展到4.5米;
通過以上結構的創新式布局,可為現場用戶實現方便地搬運過寬物料,節約能源及空間,降低投資成本,有效預防寬幅橡膠帶產品的跑偏,采用科學合理的皮帶輸送機設計方式,更大程度的起到了結構緊湊、維修方便的雙重作用;
上一篇: 深花紋型耐寒輸送帶使用效果更佳
下一篇: 新型無縫接頭運輸帶復雜工況更耐用